







Investment
Investment For Sale Milton Keynes
PROPERTY ID: 145668
PROPERTY TYPE
Investment
STATUS
Available
SIZE
1,435 sq.ft
Property Details
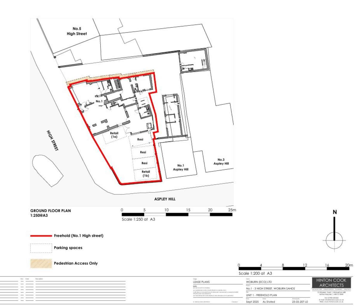
* Freehold Retail Investment For Sale.
* High Street Location In Thriving Town Centre.
* Three Individual Ground Floor Units.
* Two Units Let On Full Repairing And Insuring Leases Expiring In 2035.
* One Unit Vacant, With Letting Agreed.
* Rental Income Of £43,200 Pa Exclusive.
* Car Parking Area.
About the Agent
Louch Shacklock and Partners LLP
See Agent's Other PropertiesInvestment Unit
£600,000 Freehold
1 High Street, Milton Keynes, MK17 8RQ
Investment -
Available
1,435 sq ft
133 sqm
Show phone number